Breeze on your tender fields Karuizawa.

ガーデンテラス軽井沢

21,000万円

軽井沢駅から徒歩約11分。静けさのあるエリアで90㎡超えのゆとりの居宅。
利便性を兼ね備えた立地で快適な軽井沢ライフを!

落ち着いた暖色系の高級感ある外観 お部屋は2階建の1階部分です
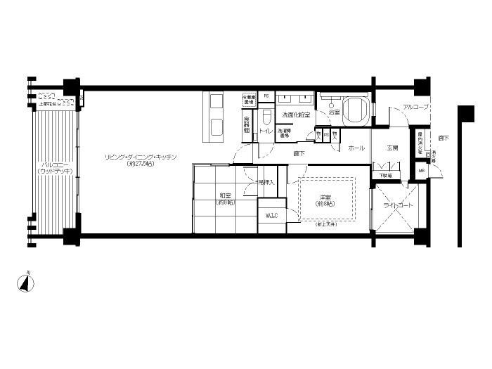
間取図

写真のクリックで その他の画像もご覧になれます

写真のタップで その他の画像もご覧になれます

開放的な27.5帖のLDKは ゆとりの広さ
充実した収納で使いやすいキッチン
ライトコートの自然光  W.I.C付の洋室

写真のタップで その他の画像もご覧になれます

物件概要
所在
北佐久郡軽井沢町軽井沢東
交通
北陸新幹線 軽井沢駅より約850m
道路
用途地域
第1種住居
土地面積
-
地目
-
地勢
平坦地
設備
公営水道・公共下水・中部電力・LPG集中方式
構造
RC造 合金メッキ鋼板ぶき地下1階付2階建
専有面積
〈壁芯〉96.31㎡(29.13坪)
間取
2LDK
建築年月
R3年5月
施工会社
北野建設(株)
管理会社
(株)東急コミュニティー
権利
所有権
取引態様
媒介

備考

  • 向き:西向き・バルコニー11.70㎡(3.53坪)
  • 管理費:40,500円/月・修繕積立金:13,500円/月・区会費:250円/月   合計54,250円
  • 床暖・インターネット接続可(プロバイダ選択制)・地デジ(BS,CS有償)・宅配ボックス
  • ペット飼育可(細則による)・ペット足洗い場・AED1台設置・駐車場20台(無償)
  • 長野県景観条例及び軽井沢町自然保護対策要綱適用
  • 本資料と現況が異なる場合は現況を優先致します
お問い合わせフォーム

下記フォームに必要事項を入力後、確認ボタンを押してください。

不動産名称
価 格
タイプ
ご用件
お名前 ※必須
ご住所
電話番号(半角)
Mail(半角) ※必須
連絡方法 Eメール  電話  いずれも可
お問い合わせ内容

 

※上記の個人情報に関して、ご本人の同意なく、物件紹介以外の目的に使用することはございません。

会社名 ページ先頭へ

本社  東京都千代田区二番町5-2-3055
TEL.03(6256)8822・FAX.03(6256)8567
支店  長野県軽井沢町軽井沢東7-22
TEL.0267(42)4111・FAX.0267(42)3155

SANWA GROUP since1967

Copyright ©2000- Sanwa Jisho. All Rights Reserved.