Breeze on your tender fields Karuizawa.

駅近 軽井沢東

15,000万円

軽井沢駅から約500m。矢ヶ崎池や大賀ホールにも近く、静かな環境も魅力です。
ガレージ付で意匠性ある建物。日当たりも良好な物件です。

地元の笹沢建設による施工  とても丁寧にご利用されている建物です
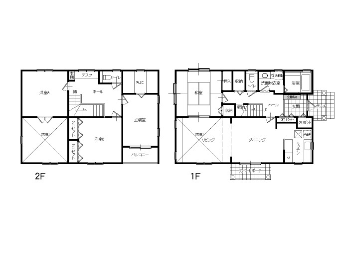
建物平面図・敷地形状図

写真のクリックで その他の画像もご覧になれます

写真のタップで その他の画像もご覧になれます

リビングは吹抜け仕様になっています
W.I.Cとバルコニーのある主寝室
東南角地で明るい環境です

写真のタップで その他の画像もご覧になれます

物件概要
所在
北佐久郡軽井沢町軽井沢東
交通
北陸新幹線 軽井沢駅より約500m
道路
東側 公道幅員 約6m・南側 公道幅員 約4m
用途地域
近隣商業  建蔽率80%  容積率200%
土地面積
261㎡(78.95坪)
地目
雑種地
地勢
平坦
設備
公営水道・公共下水・中部電力
建物面積
延139.71㎡(42.26坪)
構造
木造合金メッキ鋼板葺2階建
間取
4LDK
建築年月
平成16年10月
高さ制限
13m以下・3階建て以下
後退距離
道路及び隣地から「できる限り後退」
権利
所有権
取引態様
媒介

備考

  • 建物面積詳細:1F:77.92㎡(23.57坪) 2F:61.79㎡(18.69坪)
  • ガレージ有(車2台・電動シャッター)・エアコン4台・カバードポーチ・2Fバルコニー
  • 洪水ハザードマップの浸水想定区域に指定
  • 長野県景観条例及び軽井沢町自然保護対策要綱適用
  • 本資料と現況が異なる場合は現況を優先致します
お問い合わせフォーム

下記フォームに必要事項を入力後、確認ボタンを押してください。

不動産名称
価 格
タイプ
ご用件
お名前 ※必須
ご住所
電話番号(半角)
Mail(半角) ※必須
連絡方法 Eメール  電話  いずれも可
お問い合わせ内容

 

※上記の個人情報に関して、ご本人の同意なく、物件紹介以外の目的に使用することはございません。

会社名 ページ先頭へ

本社  東京都千代田区二番町5-2-305
TEL.03(6256)8822・FAX.03(6256)8567
支店  長野県軽井沢町軽井沢東7-22
TEL.0267(42)4111・FAX.0267(42)3155

SANWA GROUP since1967

Copyright ©2000- Sanwa Jisho. All Rights Reserved.