Breeze on your tender fields Karuizawa.

せせらぎの里

新築

23,000万円

せせらぎの里は、千ヶ滝温泉や星野温泉などが近く緑豊かな別荘地。
四季折々の光と風がめぐる軽井沢の自然を五感で楽しむ邸宅です。

自然に溶け込む落ち着いたデザイン(外観パース)
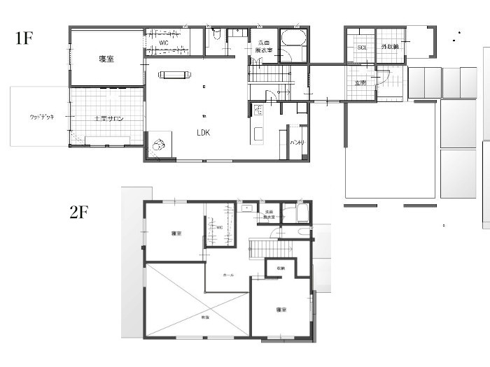
建物平面図・配置図

写真のクリックで その他の画像もご覧になれます

写真のタップで その他の画像もご覧になれます

隔たりのないLDKは約24帖の吹抜け
無垢の床板、壁と天井は珪藻土を使用
ウッドデッキと繋がる土間サロン

写真のタップで その他の画像もご覧になれます

物件概要
所在
北佐久郡軽井沢町大字長倉
交通
しなの鉄道 中軽井沢駅より約2.4km
道路
北側 幅員約5.6mの42条1項3号道路に約17.3m接道
用途地域
第一種低層住専  建蔽率30%  容積率50%
土地面積
870㎡(263.17坪)
地目
山林
地勢
平坦
設備
公営水道・浄化槽・中部電力・LPG
建物面積
延床228.75㎡ (69.1坪)
構造
木造軸組2階建+エアフロー工法
間取
3LDK+土間サロン
建築年月
R8年7月予定
高さ制限
10m以下・2階建て以下
後退距離
道路後退5m・隣地後退3m
権利
所有権
取引態様
媒介

備考

  • 写真はイメージで実際には一部家具は付きません
  • 床:天然無垢材(山桜)/壁・天井:珪藻土、薪ストーブ・1F全面床暖房・エアコン
  • 長期優良住宅、設計性能評価書、フラット35S【金利Aタイプ】利用可能
  • 水道加入金:220,000円、表示及び所有権保存登記費用要
  • 長野県景観条例及び軽井沢町自然保護対策要綱適用
  • 本資料と現況が異なる場合は現況を優先致します
お問い合わせフォーム

下記フォームに必要事項を入力後、確認ボタンを押してください。

不動産名称
価 格
タイプ
ご用件
お名前 ※必須
ご住所
電話番号(半角)
Mail(半角) ※必須
連絡方法 Eメール  電話  いずれも可
お問い合わせ内容

 

※上記の個人情報に関して、ご本人の同意なく、物件紹介以外の目的に使用することはございません。

会社名 ページ先頭へ

本社  東京都千代田区二番町5-2-305
TEL.03(6256)8822・FAX.03(6256)8567
支店  長野県軽井沢町軽井沢東7-22
TEL.0267(42)4111・FAX.0267(42)3155

SANWA GROUP since1967

Copyright ©2000- Sanwa Jisho. All Rights Reserved.